さつきが丘| 2DK|千葉市花見川区さつきが丘

  • UR
  • 礼金ゼロ

さつきが丘| 2DK|千葉市花見川区さつきが丘

▲クリックすると(全23件)の画像が拡大できます。

Address 千葉県千葉市花見川区さつきが丘1
Train JR総武線 新検見川 Sta. 11 min by bus 『さつきが丘第二』 Bus Stop 1 min walk
JR総武線 稲毛 Sta. 20 min by bus 『さつきが丘第二』 Bus Stop 2 min walk
京成千葉線 検見川 Sta. 41 min walk
Rent 41,800円
Deposit 2ヶ月 Gratuity fee 0ヶ月
Renewal fee 0ヶ月 Deposit -
Free rent - Common service fee 2,100円
Brokerage fee 0ヶ月 Total Unit 2200 戸
Floor 3階 Building age 53年
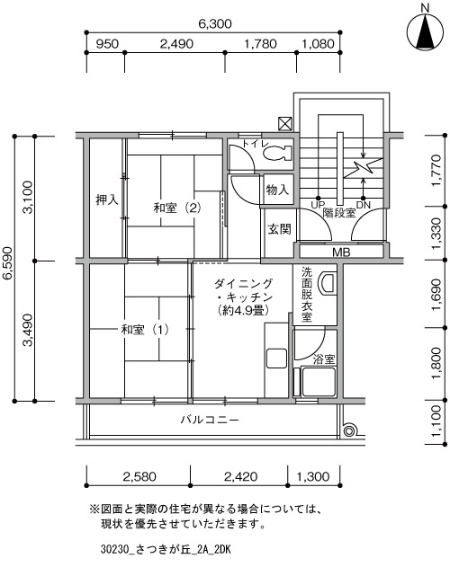
Layout 2DK Size(sq. m) 41㎡
Parking 平面 空き台数:38台 料金:6,600円
English Site Satsukigaoka
Building feature
Room feature
  • 自動お湯張り機能
  • バス・トイレ別
  • 追焚機能
  • バルコニー

ACCESS

千葉県千葉市花見川区さつきが丘1

VACANCY INFORMATION

間取り画像 状態 階数 / 階建 賃料 間取り / 床面積
空室 4階 43,900円 2DK / 45㎡ 部屋詳細はこちら
空室 5階 42,400円 2DK / 45㎡ 部屋詳細はこちら